Трехкомнатная квартира 173,00 м2 по ул. Курортный (Хостинский р-н) 92/5 за 105000000 руб.

Трехкомнатная квартира по ул. Курортный (Хостинский р-н), 92/5 в Сочи
Цена 105 000 000 р. (606 936 р./м2)
Подать заявку на ипотеку
Район Хостинский
Адрес Курортный (Хостинский р-н), 92/5
Этаж 11/23
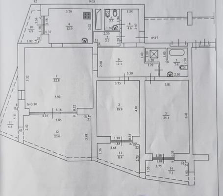
Площадь общая 173 м2, жилая 85 м2, кухни 20 м2
Кол-во комнат Трехкомнатная
Арт. 66915969 Один из самых «зелёных» микрорайонов города, в окружении парков и архитектурных ансамблей многих известных санаториев, рядом с роскошным «Swissotel Kamelia Resort &amp; SPA 5*. <br/>Проект был подготовлен талантливым коллективом архитектурного бюро под руководством А.В. Гинзбурга и получил Диплом Союза Архитекторов России в 2009 году. Изящное бело-голубое здание «Идеал Хаус», напоминающее круизный лайнер, возведено надежным российским застройщиком ООО &quot;Служба Недвижимости&quot; и строился Генподрядчиком АО «Путеви» с использованием новейших технологий и высокопрочных материалов.<br/>В витражном остеклении использован тонированный алюминиевый профиль; фасад здания утеплённый и выполнен декоративной облицовкой гранитом и мрамором.<br/>Инфраструктура жилого комплекса: охраняемая огороженная территория;<br/> прекрасно оборудованная лаундж-зона; огромный уютный холл с мягкой мебелью, телеэкраном и живыми растениями;<br/> возможность пользоваться платными медицинскими услугами соседнего санатория «Металлург» и первоклассной инфраструктурой гостиничного комплекса «Swssotel Kamelia Resort &amp; SPA»: его ресторанами и барами, СПА-центром и благоустроенным пляжем, аркадой бутиков;<br/> автоматический паркинг;<br/> открытый плавательный бассейн;<br/> фитнес-центр;<br/> ресто ран с открытой террасой;<br/> служба консьержей;<br/> пункт приема вещей в химчистку.<br/><br/>Электроснабжение осуществляется от автономной мини-ТЭС. Отопление - от автономного энергоблока. <br/>
Описание дома
Этажность дома 23
Объявление № 19583329
Дата подачи:
12 октября 2024 г. 9:00
Дата обновления:
4 августа 2025 г. 10:04
Просмотров 21 Хотите продать быстрее?

Продавец
Слепенков Максим
email: 79667700178@mail.ru
Показать номер телефона
Пожаловаться
Комментарии:
Добавить